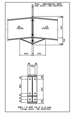
连接设计

STRAP连接设计后处理模块主要用于设计焊接或螺栓连接。用户可以从提供的连接类型中选择适合的连接形式。


主要的连接类型有以下四种:

* 梁和梁垂直连接

* 梁和柱翼缘连接

* 梁和柱腹板连接

* 梁和梁续接



对应的连接设计规范有:

* 北美规范AISC-ASD 或者LRFD

* 英国规范BS 5950

* 欧洲规范 EN 1993-1-8: 2005